Namens:
Woning bezichtigd:
Aanvaarding *:
Financiële voorwaarden *:
Voorwaarde bouwtechnische keuring *:

Rijwoning 5.4, bouwnummer 40 , Brielle

€ 560.000,- v.o.n.

Rijwoning 5.4, bouwnummer 40 , Brielle
Rijwoning 5.4, bouwnummer 40 , Brielle
Rijwoning 5.4, bouwnummer 40 , Brielle
Rijwoning 5.4, bouwnummer 40 , Brielle

Details

Overdracht

Vraagprijs
€ 560.000,- v.o.n.
Status
beschikbaar
Aanvaarding

Bouw

Soort woning
woonhuis
Soort woonhuis
eengezinswoning
Type woonhuis
Hoekwoning
Bouwvorm
nieuwbouw
Dak
samengesteld dak

Energie

Oppervlakten en inhoud

Woonoppervlakte
129 m²
Perceeloppervlakte
133 m²
Inhoud
491 m³

Indeling

Aantal kamers
4
Aantal slaapkamers
3

Buitenruimte

Ligging
in woonwijk

Foto's

Rijwoning 5.4, bouwnummer 40 , Brielle
Rijwoning 5.4, bouwnummer 40 , Brielle
Rijwoning 5.4, bouwnummer 40 , Brielle
Rijwoning 5.4, bouwnummer 40 , Brielle

Omschrijving

Rijwoning 5.4 meter

Wonen in Buitenplaats Brielle betekent leven in een groene, rustige omgeving, vlak bij het strand én de stad. Deze sfeervolle woningen liggen aan de groene laan, een hofje of de dijk en vallen op door hun rijke architectuur: metselwerk vol details, charmante tuitgevels en speelse variatie in baksteenkleuren. Een plek waar je kinderen veilig buiten kunnen spelen en jij elke dag thuiskomt in een huis met karakter.

Ruimte om samen te leven én te groeien
Je komt binnen in een... Lees meer

Rijwoning 5.4 meter

Wonen in Buitenplaats Brielle betekent leven in een groene, rustige omgeving, vlak bij het strand én de stad. Deze sfeervolle woningen liggen aan de groene laan, een hofje of de dijk en vallen op door hun rijke architectuur: metselwerk vol details, charmante tuitgevels en speelse variatie in baksteenkleuren. Een plek waar je kinderen veilig buiten kunnen spelen en jij elke dag thuiskomt in een huis met karakter.

Ruimte om samen te leven én te groeien
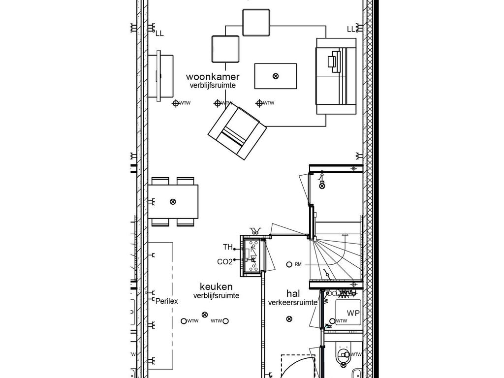
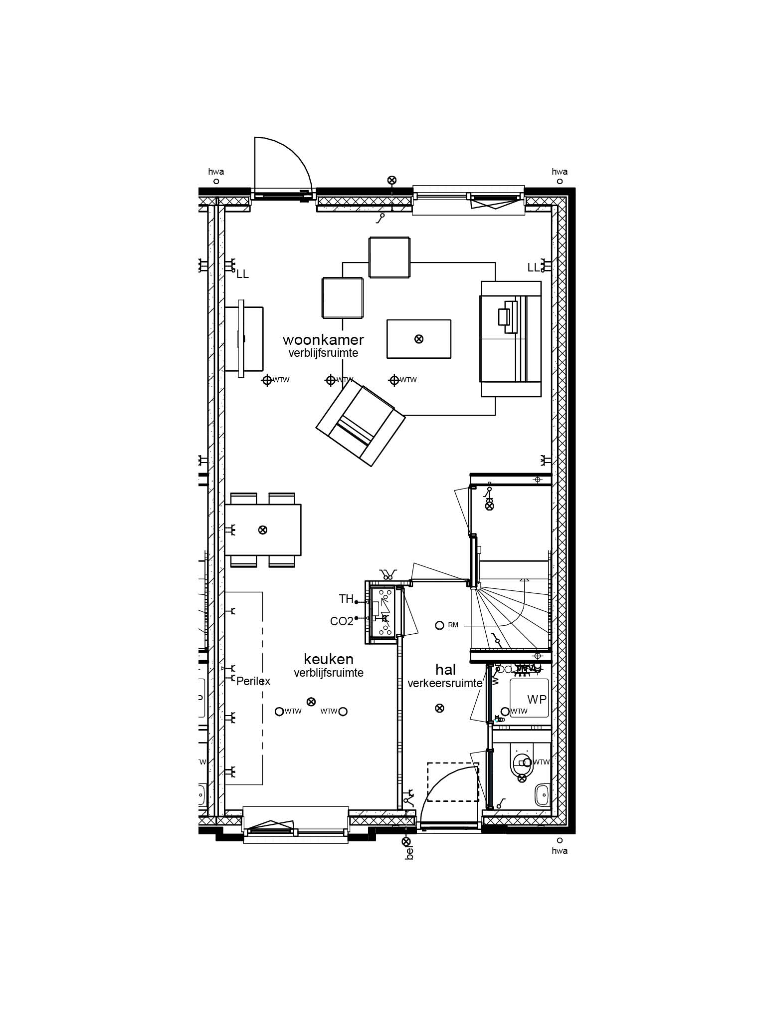
Je komt binnen in een praktisch ingedeelde entreehal met toilet, meterkast en trap naar boven. De woonkamer met open keuken vormt het hart van het huis – hier wordt geleefd, gelachen en samen gegeten. Terwijl jij kookt met uitzicht op de straat, spelen de kinderen in de tuin of bouwen ze een hut in de woonkamer. De achtertuin nodigt uit tot buitenleven: kies je voor een ligging op het westen, zuidwesten of noordoosten?

De verdiepingen
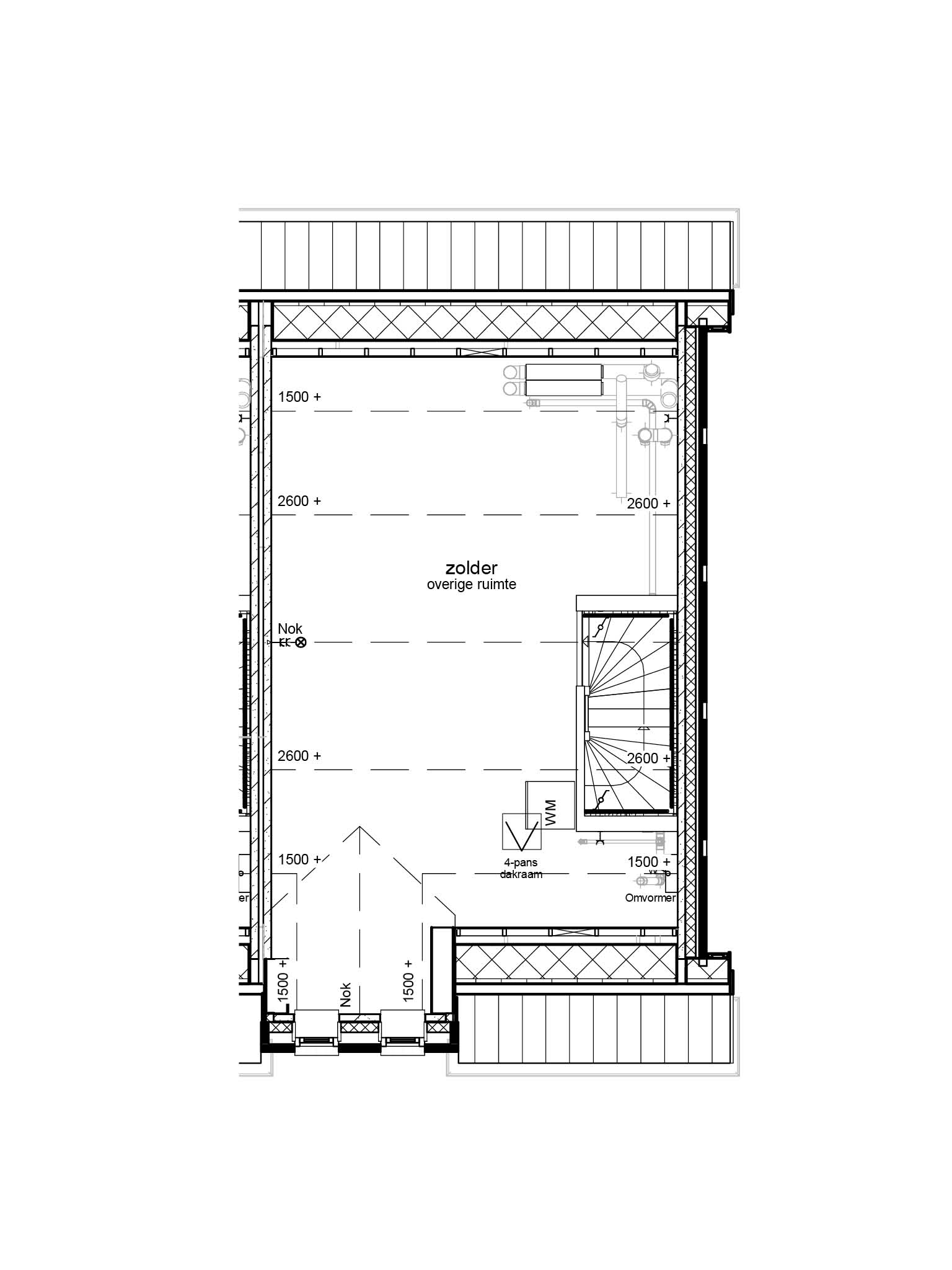
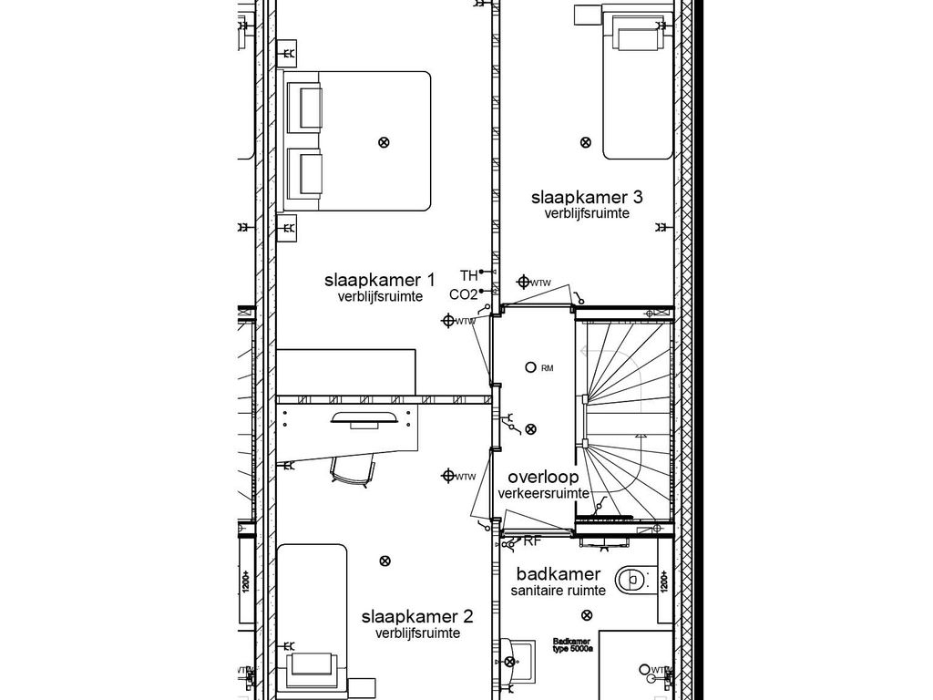
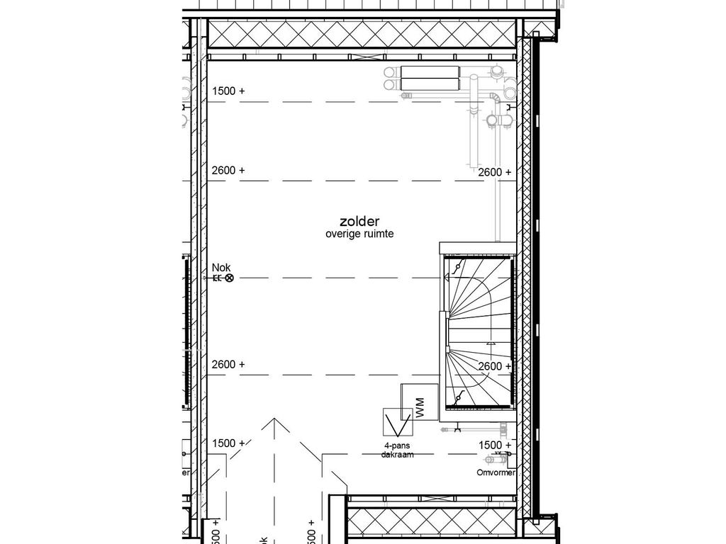
Op de eerste verdieping vind je drie slaapkamers in verschillende groottes – perfect voor de kinderkamer(s) en een rustige plek voor jezelf. De badkamer is uitgerust met een douche, wastafel en tweede toilet, zodat iedereen ’s ochtends soepel de dag kan starten. De open tweede verdieping biedt volop mogelijkheden: een speelruimte of thuiskantoor? Jij kiest. Hier vind je ook de aansluiting voor de wasmachine. En goed om te weten: deze woning is voorzien van energielabel A++++. Dat betekent energiezuinig wonen, lage maandlasten én een duurzame keuze. Helemaal klaar voor de toekomst!

Disclaimer:
Deze informatie is door Van Ravens Makelaardij met de nodige zorgvuldigheid samengesteld. De informatie is echter van algemene aard. Onzerzijds wordt echter geen enkele aansprakelijkheid aanvaard voor enige onvolledigheid, onjuistheid of anderszins, dan wel de gevolgen daarvan. Alle opgegeven maten en oppervlakten zijn indicatief.
Van toepassing zijn de NVM voorwaarden.

Locatie

Toon streetview

Contact opnemen